物件コード「S634D220260213」をお伝えください。
| 賃料 | 44万円 |
| 管理費等 | 33,000円 |
| 敷金/保証金 | 8ヶ月/- |
| 礼金 | 1ヶ月 |
| タイプ | 店舗(一部) |
| 所在地 | |
| 交通 | 山手線 大塚まで 徒歩5分
都電荒川線 大塚駅前まで 徒歩5分 山手線 池袋まで 徒歩20分 |
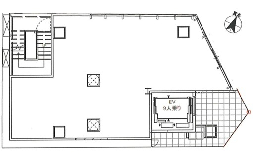
| 面積 | 52.93m² |
| 坪/坪賃料 | 16.01坪/27,480円 |
| 建物構造 | 鉄骨造 |
| 階/階建 | 1階/8階建 |
| 駐車場 | 無 |
| 火災保険 | 要 2年 |
| 敷引・償却 | - |
| 契約期間 | 2年 |
| 更新料 | 新賃料1ヶ月分 |
| 引渡時期 | 即時 |
| 現況 | 空室 |
| 取引態様 | 仲介 |
| 仲介手数料 | 1ヶ月 |
| 築年月 | 2026/02 |
| その他 | 更新の際には、要更新手数料 - 審査内容により保証会社加入義務有 - ※賃料・管理費等は税込金額です - |
| 特色 | 前テナント:未入居、天井高:(確認中)、保証会社必須、エレベーター、EV不停止機能、機械警備、24時間使用可、ワンフロア独立、大通り面、飲食可、スケルトン、新耐震基準 |
| コメント | 【大塚エリア:貸店舗】≪メリット≫新築。角地の1F路面店舗。 ≪デメリット≫重飲食は不可。 ☆スケルトン。大きな窓面で視認性良好。 |
| 情報更新日 | 2026年02月25日 |
| 次回更新予定日 | 2026年02月26日 |
物件コード「S634D220260213」をお伝えください。