【港エリア:貸店舗・事務所】
≪メリット≫
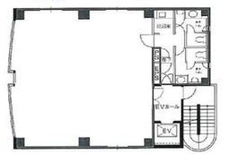
正方形に近く、レイアウトのし易い間取り!
≪デメリット≫
やや勾配がある立地です
☆複数路線使用可です!
| 物件名 | 赤坂ウイングビル 2F |
|---|---|
| 賃料 | ¥648,384 |
| 管理費等 | |
| 住所 | 港区赤坂6丁目6−15 |
| 敷金/礼金 | 10ヶ月/ |
| 保証金/償却 | / |
| 面積 | 121.8m2 ( 36.84坪 ) |
| 構造 | 鉄筋コンクリート造 |
| 階/階建 | 2階/5階建 |
| 築年月 | 1994/02 |
物件概要
| 物件コード | R315H101 | ||
|---|---|---|---|
| 物件名 | 赤坂ウイングビル 2F | ||
| タイプ | 事務所 | ||
| 交通 | 千代田線 赤坂まで 徒歩5分 銀座線 溜池山王まで 徒歩6分 丸ノ内線 赤坂見附まで 徒歩13分 |
バス停・最寄施設等 | ホテルマイステイズプレミア赤坂まで 徒歩3分 |
| 賃料 | ¥648,384 | 坪単価(賃料) | ¥17,597 |
| 管理費等 | 坪単価(管理費等) | ||
| 消費税等 | ※賃料・管理費等は税込金額です | その他 | 審査内容により保証会社加入義務有 |
| 契約期間 | 2年 | 火災保険 | 要加入 |
| 更新料 | 更新料無し | 更新手数料 | |
| 駐車場在否 | 要確認 | 駐車場料金 | |
| 現況 | 空室 | 引渡時期 | 即時 |
| 契約時 概算費用 | ¥7,191,168 | 取引態様 | 一般媒介 |
| 特色 | 前テナント:一般事務所、天井高:(確認中)、トイレ(室内)、エレベーター、機械警備、エアコン、ワンフロア独立、駐車場、新耐震基準、男女別トイレ、24時間使用可、タイムズカーシェアリング3台有り | ||
※赤坂ウイングビルについて掲載されている物件データが現状と異なる場合は現状を優先します































