【渋谷エリア:貸事務所】≪メリット≫宮益坂に面した、抜群のアクセスと利便性を誇る周辺環境です。 ≪デメリット≫外観の鮮やかな黄色が印象的で、個性的なデザインが魅力的です。 ☆建物管理良好物件、男女別トイレを完備。
| 物件名 | 第27SYビル 7A |
|---|---|
| 賃料 | ¥935,000 |
| 管理費等 | - |
| 住所 | 渋谷区渋谷1丁目8−7 |
| 敷金/礼金 | 8ヶ月/ |
| 保証金/償却 | /10% |
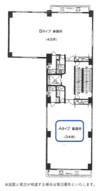
| 面積 | 112.4m2 ( 34坪 ) |
| 構造 | 鉄筋コンクリート造 |
| 階/階建 | 7階/10階建 |
| 築年月 | 2006/03 |
物件概要
| 物件コード | 745J101 | ||
|---|---|---|---|
| 物件名 | 第27SYビル 7A | ||
| タイプ | 事務所 | ||
| 交通 | 山手線 渋谷まで 徒歩3分 東横線 渋谷まで 徒歩3分 銀座線 渋谷まで 徒歩3分 |
バス停・最寄施設等 | |
| 賃料 | ¥935,000 | 坪単価(賃料) | ¥27,500 |
| 管理費等 | - | 坪単価(管理費等) | |
| 消費税等 | ※賃料・管理費等は税込金額です | その他 | 審査内容により保証会社加入義務有 |
| 契約期間 | 2年 | 火災保険 | 要加入 |
| 更新料 | 新賃料1ヶ月分 | 更新手数料 | 更新の際には、要更新手数料 |
| 駐車場在否 | 無 | 駐車場料金 | |
| 現況 | 使用中 | 引渡時期 | 令和08年09月上旬 |
| 契約時 概算費用 | ¥8,670,000 | 取引態様 | 一般媒介 |
| 特色 | 前テナント:事務所、天井高:(確認中)、契約面積に共用部含む、保証会社必須、トイレ(室内)、男女別トイレ、エレベーター、EV不停止機能、24時間使用可、エアコン、OAフロア、大通り面、駅至近、新耐震基準、※室内写真は別室イメージ | ||
※第27SYビルについて掲載されている物件データが現状と異なる場合は現状を優先します
周辺環境・地図
地図
|
地図を右クリックでルート検索が可能です。
|
位置情報に関するご注意:現在位置情報は精査中の為、正確ではない場合があります。あくまで参考程度の情報となります。





































