【原宿エリア:貸事務所】≪メリット≫渋谷駅及び明治神宮前駅にアクセス良好!明治道り沿いのアナウンスしやすい立地! ≪デメリット≫1Fエントランスに階段があるので荷物の搬入が多い業種はつらいかも ☆人気のワンフロア独立タイプ!男女別トイレあり!
| 物件名 | 第25SYビル 5F |
|---|---|
| 賃料 | ¥1,238,600 |
| 管理費等 | |
| 住所 | 渋谷区神宮前6丁目23−2 |
| 敷金/礼金 | 8ヶ月/ |
| 保証金/償却 | /10% |
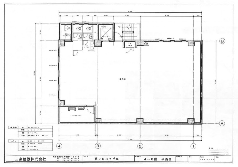
| 面積 | 186.12m2 ( 56.3坪 ) |
| 構造 | 鉄骨鉄筋コンクリート造 |
| 階/階建 | 5階/10階建 |
| 築年月 | 1990/03 |
物件概要
| 物件コード | 735G502 | ||
|---|---|---|---|
| 物件名 | 第25SYビル 5F | ||
| タイプ | 事務所 | ||
| 交通 | 山手線 渋谷まで 徒歩9分 副都心線 渋谷まで 徒歩9分 千代田線 明治神宮前まで 徒歩7分 |
バス停・最寄施設等 | ラフォーレ原宿まで 徒歩5分 |
| 賃料 | ¥1,238,600 | 坪単価(賃料) | ¥22,000 |
| 管理費等 | 坪単価(管理費等) | ||
| 消費税等 | ※賃料・管理費等は税込金額です | その他 | 審査内容により保証会社加入義務有 |
| 契約期間 | 2年 | 火災保険 | 要加入 |
| 更新料 | 新賃料1ヶ月分 | 更新手数料 | 更新の際には、要更新手数料 |
| 駐車場在否 | 無 | 駐車場料金 | |
| 現況 | 使用中 | 引渡時期 | 令和08年06月上旬 |
| 契約時 概算費用 | ¥11,485,200 | 取引態様 | 一般媒介 |
| 特色 | 前テナント:事務所、天井高:(確認中)、契約面積に共用部含む、保証会社必須、トイレ(室内)、男女別トイレ、エレベーター、エアコン、ワンフロア独立、大通り面、新耐震基準 | ||
※第25SYビルについて掲載されている物件データが現状と異なる場合は現状を優先します
周辺環境・地図
地図
|
地図を右クリックでルート検索が可能です。
|
位置情報に関するご注意:現在位置情報は精査中の為、正確ではない場合があります。あくまで参考程度の情報となります。


































