新宿の貸事務所・貸店舗・マンション探しをサポート 不動産の株式会社サンライズ
トップページへ
>
事業用物件一覧へ
> 物件情報
貸店舗・大塚物件情報
駅名別一覧
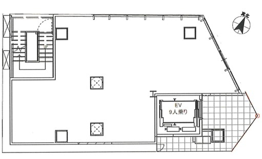
間取一覧
写真一覧
地図一覧
この他にも、貸主様等のご都合により、ホームページ上に記載できない物件が多数ございます。
希望条件登録をして頂ければ、ご紹介出来ます。
登録はこちらから ⇒
こちら
既に会員登録がお済の方はこちらから ⇒
クリック
物件番号
写真画像
駅名
徒歩
住所1
賃料
管理費等
面積m
2
面積(坪)
階/階建
西暦築年月
詳細
画像
104687
大塚
1分
豊島区南大塚3丁目
¥126,085
¥5,500
41.15m
2
12.44坪
3階/4階建
1971/02
【大塚エリア:貸店舗・事務所】
≪メリット≫
トイレが室外にあり、室内を有効に使えます。
≪デメリット≫
EVがございません。
☆商店街に面し、人通りが多く、集客に便利です!!
111600
大塚
1分
豊島区南大塚2丁目
¥528,000
¥44,000
79.77m
2
24.13坪
4階/8階建
1970/06
【大塚エリア:貸店舗・事務所】 ≪メリット≫大塚駅南口ロータリーに面し、アナウンスに便利です。≪デメリット≫ビル内同業種の入店はNGとなります。☆大塚駅南口徒歩1分でアクセス至便です!!
112867
大塚
15分
東京都豊島区上池袋1丁目
¥605,000
90.81m
2
27.47坪
1階/11階建
1992/03
【池袋エリア:貸店舗・事務所】
≪メリット≫
視認性の良い明治通り沿い1f路面店舗。
≪デメリット≫
スケルトン渡しとなります。
☆各種サービス店舗や物販、重飲食も相談可能。
条件を変えて探す
金額から探す
広さから探す
駅・路線から探す
こだわりから探す
新着物件から探す
キーワードから探す
金額から探す
7万円以下
7万〜8万円
8万〜10万円
10万〜12万円
12万〜15万円
15万〜20万円
20万円以上
広さから探す
1R
1K
1DK
1LDK
2K〜2LDK
3K〜3LDK
4K以上
駅・路線から探す
JR線
東京メトロ
西武鉄道
都営地下鉄
山手線
総武中央線
埼京線
中央線
丸ノ内線
副都心線
大江戸線
有楽町線
南北線
銀座線
千代田線
西武池袋線
西武新宿線
都営新宿線
東武鉄道
小田急電鉄
京王電鉄
東部東上線
小田急線
京王線
こだわりから探す
礼金無し
初期費用を安く
バス・トイレ別
上階層(5階以上)
分譲タイプ
駅近(5分以内)
バイク置き場あり
駐輪場あり
SOHO可
事務所可
リノベーション
デザイナーズ
角部屋
最上階
築浅物件(築10年)
日当たり良好
ペット飼育可
楽器演奏可
レア物件
オートロック
新着物件から探す
シングル向け物件
ファミリー向け物件
キーワードから探す
駅名・物件名など入力して下さい。
powered by Yahoo! JAPAN
条件を変えて探す
金額から探す
広さから探す
駅・路線から探す
こだわりから探す
新着物件から探す
キーワードから探す
金額から探す
店舗物件
10万円以下
10万〜15万円
15万〜20万円
20万〜30万円
30万〜50万円
50万〜100万円
100万円以上
事務所物件
10万円以下
10万〜15万円
15万〜20万円
20万〜30万円
30万〜50万円
50万〜100万円
100万円以上
広さから探す
店舗物件
10坪以下
10坪〜15坪
15坪〜20坪
20坪〜30坪
30坪〜50坪
50坪〜100坪
100坪以上
事務所物件
10坪以下
10坪〜15坪
15坪〜20坪
20坪〜30坪
30坪〜50坪
50坪〜100坪
100坪以上
駅・路線から探す
JR線
東京メトロ
西武鉄道
都営地下鉄
山手線
総武中央線
埼京線
中央線
丸ノ内線
副都心線
大江戸線
有楽町線
南北線
銀座線
千代田線
西武池袋線
西武新宿線
都営新宿線
東武鉄道
小田急電鉄
京王電鉄
東部東上線
小田急線
京王線
こだわりから探す
飲食可
おすすめ商業立地
初期費用を安く
フリーレント相談
駅近(3分以内)
リノベーション
新規起業向け
地下物件
1階物件
男女別トイレ
トイレ(共用)
外装美観
大通り沿い
天井高(2,800mm以上)
ワンフロア―独立
倉庫
レア物件
新着物件から探す
事務所物件
店舗物件
キーワードから探す
駅名・物件名など入力して下さい。
powered by Yahoo! JAPAN
アパート・マンション物件
新着物件から探す
駅・路線から探す
おすすめ条件から探す
こだわりから探す
キーワードから探す
駅名、物件名など
powered by Yahoo! JAPAN
探してもらう
店舗・事務所物件
新着物件から探す
駅・路線から探す
おすすめ条件から探す
こだわりから探す
キーワードから探す
駅名、物件名など
powered by Yahoo! JAPAN
探してもらう