113344
|
新宿三丁目 1分 |
東京都新宿区新宿3丁目 |
¥308,000 - |
25.1m2 7.59坪 |
4階/4階建 1979/04 |
|
     
|
| 【新宿三丁目エリア:貸店舗・事務所】≪メリット≫新宿三丁目人気の要通り店舗物件。 ≪デメリット≫EVはありません。風営許可業種は不可。 ☆ワンフロア独立、飲食・サービス店舗相談可能。 |
100896
|
新宿三丁目 1分 |
新宿区新宿3丁目 |
¥456,500 ¥5,500 |
49.59m2 15坪 |
3階/6階建 1969/09 |
|
    
|
【新宿エリア:貸店舗・事務所】 ≪メリット≫ 新宿三丁目駅C-5出口目の前でアクセス便利です。 ≪デメリット≫ 美容室等の水を大量に使う業種はNGです。
☆ネイルサロン等の予約制サロンにお奨めです!! |
114026
|
新宿 3分 |
新宿区新宿3丁目 |
¥1,100,000 ¥44,000 |
73.22m2 22.14坪 |
6階/6階建 2025/12 |
|
     
|
| 【新宿エリア:貸店舗・事務所】≪メリット≫新宿3丁目、人通りの絶えない好立地。新築、ワンフロア独立。 ≪デメリット≫飲食店舗は不可。 ☆角地で最上階。視認性の良い物件。 |
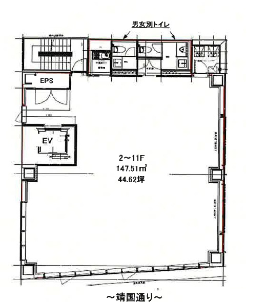
113643
|
新宿三丁目 1分 |
新宿区新宿3丁目 |
¥1,177,968 ¥147,246 |
147.51m2 44.62坪 |
2階/12階建 2025/10 |
|
     
|
| 【新宿エリア:貸事務所】 ≪メリット≫新宿3丁目駅の出口から徒歩1分の好立地です。≪デメリット≫定期借家契約(再契約型)です ☆1階にコンビニがある分かりやすいオフィスビルです。 |
114131
|
新宿三丁目 1分 |
新宿区新宿3丁目 |
¥1,177,968 ¥147,246 |
147.51m2 44.62坪 |
4階/12階建 2025/10 |
|
     
|
| 【新宿エリア:貸事務所】 ≪メリット≫新宿3丁目駅の出口から徒歩1分の好立地です。≪デメリット≫定期借家契約(再契約型)です ☆1階にコンビニがある分かりやすいオフィスビルです。 |
114132
|
新宿三丁目 1分 |
新宿区新宿3丁目 |
¥1,227,050 ¥147,246 |
147.51m2 44.62坪 |
11階/12階建 2025/10 |
|
     
|
| 【新宿エリア:貸事務所】 ≪メリット≫新宿3丁目駅の出口から徒歩1分の好立地です。≪デメリット≫定期借家契約(再契約型)です ☆1階にコンビニがある分かりやすいオフィスビルです。 |
114133
|
新宿三丁目 1分 |
新宿区新宿3丁目 |
¥1,227,050 ¥147,246 |
147.51m2 44.62坪 |
10階/12階建 2025/10 |
|
     
|
| 【新宿エリア:貸事務所】 ≪メリット≫新宿3丁目駅の出口から徒歩1分の好立地です。≪デメリット≫定期借家契約(再契約型)です ☆1階にコンビニがある分かりやすいオフィスビルです。 |