| 103861 
 | 東銀座 2分
 | 中央区銀座3丁目 | ¥506,000 ¥44,000
 | 82.28m2 24.88坪
 | 8階/11階建 2019/02
 |   |  | 
        
          | 【銀座エリア:貸事務所】 ≪メリット≫
 木挽町通り沿い!落ち着いた大人を感じさせる場所です!
 ≪デメリット≫
 店舗使用は不可
 
 ☆登記可能なSOHO物件です!
 | 
        
          | 102964 
 | 神田 3分
 | 千代田区内神田2丁目 | ¥517,275 ¥145,200
 | 109.1m2 33坪
 | 4階/9階建 1994/05
 |   |        | 
        
          | 【神田エリア:貸事務所】 ≪メリット≫
 神田駅徒歩3分!出世不動通り沿いのアナウンスしやすい立地!
 ≪デメリット≫
 初期費用は割高です。
 
 ☆前面ガラス張りのオシャレな物件!高級感があり来訪者にも好印象な物件です!
 | 
        
          | 112821 
 | 赤坂 3分
 | 港区赤坂7丁目 | ¥519,750 
 | 74.4m2 22.5坪
 | 8階/8階建 2010/07
 |   |        | 
        
          | 【赤坂エリア:事務所】 ≪メリット≫
 赤坂通り沿いに面し、視認性抜群◎
 ≪デメリット≫
 事務所のみです。
 
 ☆ワンフロア独立、室内男女別トイレ!
 | 
        
          | 113315 
 | 新御茶ノ水 1分
 | 千代田区神田小川町2丁目 | ¥520,300 ¥94,600
 | 142.1m2 42.98坪
 | 2階/6階建 1973/10
 |   |        | 
        
          | 【小川町エリア:貸事務所】≪メリット≫複数路線利用可能な便利な立地です!≪デメリット≫築年数経過で古さ否めず ☆人気の共用男女別トイレ物件です! | 
        
          | 106799 
 | 神田 7分
 | 東京都千代田区岩本町2丁目 | ¥525,866 ¥71,709
 | 71.86m2 21.73坪
 | 2階/9階建 1970/04
 |   |        | 
        
          | 【岩本町エリア:貸事務所】≪メリット≫岩本町駅至近!利便性の良い好立地です!≪デメリット≫坪単価はやや高め ☆管理体制良好で綺麗な物件です! | 
        
          | 109012 
 | 飯田橋 1分
 | 新宿区揚場町 | ¥526,669 -
 | 109.16m2 33.02坪
 | 4階/8階建 1980/10
 |   |        | 
        
          | 【飯田橋エリア:貸店舗・事務所】 ≪メリット≫
 飯田橋徒歩1分の好立地物件!スクールやサービス店舗も相談可能です!
 ≪デメリット≫
 飲食業は不可です。
 
 ☆アナウンスしやすく、ビル管理状態も良好です!
 | 
        
          | 99731 
 | 東銀座 5分
 | 中央区銀座7丁目 | ¥527,142 ¥112,959
 | 113.16m2 34.23坪
 | 6階/7階建 1984/08
 |   |        | 
        
          | 【銀座エリア:貸事務所】 ≪メリット≫
 エントランスは観音開きの珍しい自動ドアです!
 ≪デメリット≫
 JR線の駅までは微妙に距離が有ります
 
 ☆大江戸線築地市場駅から2分!
 | 
        
          | 111600 
 | 大塚 1分
 | 豊島区南大塚2丁目 | ¥528,000 ¥44,000
 | 79.77m2 24.13坪
 | 4階/8階建 1970/06
 |   |        | 
        
          | 【大塚エリア:貸店舗・事務所】 ≪メリット≫大塚駅南口ロータリーに面し、アナウンスに便利です。≪デメリット≫ビル内同業種の入店はNGとなります。☆大塚駅南口徒歩1分でアクセス至便です!! | 
        
          | 100967 
 | 秋葉原 3分
 | 千代田区神田和泉町1番地 | ¥529,049 ¥116,391
 | 116.4m2 35.21坪
 | 2階/6階建 1991/03
 |   |        | 
        
          | 【秋葉原エリア:貸店舗・事務所】 ≪メリット≫
 秋葉原駅徒歩3分!複数路線利用可能な便利立地!
 ≪デメリット≫
 築年数は経過しております。
 
 ☆管理体制良好!1Fエントランスなどの清掃も目の行き届いた綺麗な物件です!
 | 
        
          | 102055 
 | 馬喰横山 3分
 | 千代田区東神田1丁目 | ¥530,613 -
 | 127.58m2 38.59坪
 | 1階〜2階/5階建 1982/10
 |   |        | 
        
          | 【秋葉原エリア:貸店舗・事務所】 ≪メリット≫
 室内階段で繋がった1階2階一括貸し。前面スペースにワゴン等が置けます。
 ≪デメリット≫
 白い外観のため若干汚れが目につきます。
 
 ☆JR馬喰町徒歩1分。問屋街で有名な土地柄です。
 | 
        
          | 111415 
 | 銀座一丁目 1分
 | 中央区銀座1丁目 | ¥539,000 ¥157,850
 | 115.71m2 35坪
 | B1階/10階建 1973/10
 |   |        | 
        
          | 【銀座エリア:貸店舗】 ≪メリット≫
 有楽町線『銀座一丁目』駅徒歩1分。
 ≪デメリット≫
 B1FはEVが止まりません。
 
 ☆管理人常駐(有人管理)です 正方形に近い間取りでレイアウト自在です。
 | 
        
          | 111382 
 | 目黒 3分
 | 目黒区目黒一丁目 | ¥541,200 -
 | 61.19m2 18.5坪
 | 2階/9階建 1974/07
 |   |        | 
        
          | 【新宿エリア:貸店舗・事務所】 ≪メリット≫
 窓面カッティングシートによる宣伝効果が期待出来ます。
 ≪デメリット≫
 公正証書契約(費用は折半)となります。
 ☆明治通り」に面し複数路線利用可能でアクセス至便です!!
 | 
        
          | 91372 
 | 渋谷 2分
 | 渋谷区渋谷2丁目 | ¥541,816 ¥80,696
 | 69.32m2 20.96坪
 | 10階/10階建 1995/11
 |   |        | 
        
          | 【渋谷エリア:貸店舗・事務所】 ≪メリット≫
 渋谷ヒカリエ並びで集客に便利です。
 ≪デメリット≫
 業種バッティング(美容室・歯科・ネイル・アイラッシュ等)はNGです。
 
 ☆エステサロン居抜きも応相談です!!
 | 
        
          | 113001 
 | 人形町 1分
 | 中央区日本橋人形町3丁目 | ¥544,544 ¥116,688
 | 116.92m2 35.36坪
 | 3階/10階建 1986/04
 |   |  | 
        
          | 【人形町エリア:貸事務所】 ≪メリット≫
 管理の行き届いたオフィス物件!
 ≪デメリット≫
 エレベーターが1基なので待つ事があります
 
 ☆抜群の立地!視認性良好◎
 | 
        
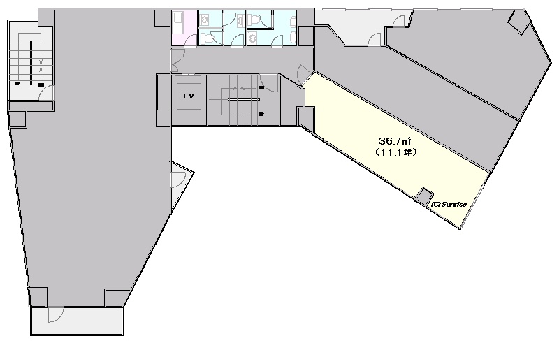
          | 105433 
 | 京橋 1分
 | 中央区京橋2丁目 | ¥545,490 -
 | 36.43m2 11.02坪
 | 2階/8階建 2002/01
 |   |        | 
        
          | 【京橋エリア:貸事務所】 ≪メリット≫
 レセプション有り(来客取次や荷物受取等)。ビジネス効率の良いサービスオフィス!!
 ≪デメリット≫
 一般の賃貸物件に比べて賃料がやや割高感あり
 
 ☆現代アートが飾られたデザイナーズ共有スペース。商談ラウンジ・会議室完備。
 | 
        
          | 111730 
 | 銀座一丁目 1分
 | 中央区銀座2丁目 | ¥546,040 ¥96,360
 | 96.53m2 29.2坪
 | 4階/6階建 1963/11
 |   |        | 
        
          | 【中央エリア:貸店舗・事務所】 ≪メリット≫
 銀座一丁目駅徒歩1分という立地ながら落ち着いたオフィス環境!!
 
 ≪デメリット≫室内に柱が立っておりレイアウトに工夫が必要です。
 
 ☆水廻りの造作が不要な業種であれば店舗使用ご相談可!!(ネイル、まつエク入居済の為不可)
 | 
        
          | 111296 
 | 神保町 4分
 | 千代田区神田錦町3丁目 | ¥547,470 -
 | 109.69m2 33.18坪
 | 2階/10階建 1989/08
 |   |        | 
        
          | 【神保町エリア:貸事務所】 ≪メリット≫
 神保町駅徒歩4分!管理体制良好な綺麗な物件です!
 ≪デメリット≫
 周辺は似たようなオフィス街の為、アナウンスには工夫が必要かもしれません。
 
 ☆人気の男女別トイレ・ワンフロア・ワンテナント物件です!
 | 
        
          | 101306 
 | 秋葉原 3分
 | 千代田区神田岩本町 | ¥550,000 ¥99,000
 | 132.24m2 40坪
 | 3階/10階建 1962/12
 |   |        | 
        
          | 【秋葉原エリア:貸店舗・事務所】 ≪メリット≫
 都営新宿線:岩本町駅の出口すぐ
 ≪デメリット≫
 築年数経過で古さ否めず
 
 ☆人通り多数、昭和通り沿い、各業種ご相談下さい!
 | 
        
          | 105837 
 | 明治神宮前 1分
 | 渋谷区神宮前1丁目 | ¥550,000 ¥135,300
 | 119.408m2 36.12坪
 | 7階/7階建 1965/01
 |   |       | 
        
          | 【原宿エリア:貸事務所】 ≪メリット≫
 東京メトロ『明治神宮前』駅徒歩1分!
 ≪デメリット≫
 定期借家契約(2028年11月30日迄)となります
 
 ☆ラフォーレ原宿隣り!表参道交差点立地で設備も充実の高級マンション!
 | 
        
          | 109532 
 | 渋谷 8分
 | 渋谷区道玄坂1丁目 | ¥550,000 
 | 79.81m2 24.14坪
 | 10階/11階建 1971/01
 |   |        | 
        
          | 【渋谷エリア:事務所】 ≪メリット≫
 道玄坂に面するアクセス&アナウンスしやすい立地!!
 ≪デメリット≫
 柱がある為、レイアウトには工夫が必要
 
 ☆管理が行き届いており、築年数を感じないぐらい綺麗な物件です!!
 |