94730
|
東京 2分 |
中央区八重洲1丁目 |
¥461,725 - |
60.36m2 18.25坪 |
4階/7階建 1966/07 |
|
    
|
【八重洲エリア:貸事務所】 ≪メリット≫ 2026年竣工トフロム八重洲すぐ裏。2009年リニューアル工事実施。 ≪デメリット≫ 事務所用途優先。クリニック・飲食NG。
☆「東京駅」「日本橋駅」至近、八重洲仲通沿いで視認性良好。 |
111109
|
半蔵門 2分 |
千代田区隼町 |
¥462,000 - |
88.93m2 26.9坪 |
5階/9階建 1988/01 |
|
    
|
【半蔵門エリア:貸事務所】 ≪メリット≫ 半蔵門駅徒歩2分のアクセス! ≪デメリット≫ 上階でEV一基なのでエレベーターの待ち時間が気になる方もいるかも。
☆設備充実!人気のワンフロア・ワンテナントビルです! |
113138
|
小川町 6分 |
東京都千代田区神田錦町1丁目 |
¥465,520 ¥170,016 |
121.66m2 36.8坪 |
1階/5階建 1992/04 |
|
    
|
【神田エリア:貸事務所】 ≪メリット≫ 複数路線利用可 ≪デメリット≫ 定期借家契約となります
☆人気のワンフロア独立タイプ、希少な1階事務所物件です |
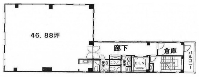
113742
|
恵比寿 4分 |
渋谷区東3丁目 |
¥466,455 - |
84.96m2 25.7坪 |
4階/8階建 1980/02 |
|
     
|
| 【渋谷エリア:貸事務所】≪メリット≫恵比寿駅徒歩4分。綺麗なエントランス。 ≪デメリット≫店舗利用は不可。 ☆ワンフロア独立。使いやすい間取り。 |
113755
|
恵比寿 4分 |
渋谷区東3丁目 |
¥466,455 - |
84.96m2 25.7坪 |
2階/8階建 1980/02 |
|
     
|
| 【渋谷エリア:貸事務所】≪メリット≫恵比寿駅徒歩4分。綺麗なエントランス。 ≪デメリット≫店舗利用は不可。 ☆ワンフロア独立。使いやすい間取り。 |
112980
|
浜松町 4分 |
港区浜松町2丁目 |
¥467,016 |
58.49m2 17.69坪 |
4階/10階建 2019/01 |
|
    
|
【浜松町エリア:事務所】 ≪メリット≫ 第一京浜、金杉橋北交差点の角地。視認性良好です。 ≪デメリット≫ 室内のレイアウトにひと工夫を。
☆2019年竣工のスモールオフィス。
|
113363
|
本郷三丁目 3分 |
文京区本郷3丁目 |
¥469,150 ¥112,596 |
112.8m2 34.12坪 |
3階/9階建 1989/01 |
|
    
|
【御茶ノ水エリア:貸店舗・事務所】
≪メリット≫
中仙道・本郷通りに面した好立地
≪デメリット≫
不特定多数出入りの業態NG
☆五差路角地、複数路線アクセス可! |
107692
|
神保町 2分 |
千代田区神田神保町3丁目 |
¥472,973 - |
63.18m2 19.11坪 |
7階/11階建 2022/01 |
|
    
|
【神保町エリア:貸店舗・事務所】 ≪メリット≫ コンパクトなオフィスなのにトイレ2か所あり。 ≪デメリット≫ 飲食店はNGです。
☆神保町駅徒歩2分、靖国通り沿いで視認性良好。 |
113400
|
内幸町 2分 |
港区新橋2丁目 |
¥473,825 - |
56.97m2 17.23坪 |
11階/13階建 2019/03 |
|
    
|
【新橋エリア:貸店舗・事務所】
≪メリット≫
窓面が広く明るい室内。機械警備・EV不停止機能付きで安心セキュリティ。
≪デメリット≫
ややクセのある形の間取でレイアウトに一工夫
☆内幸町・新橋駅に近く交通至便。店舗利用もご相談可。 |
111852
|
六本木 13分 |
港区西麻布3丁目 |
¥478,720 ¥71,808 |
71.95m2 21.76坪 |
8階/11階建 2021/02 |
|
    
|
【六本木エリア:貸店舗・事務所】 ≪メリット≫ テレビ朝日道り沿いの好立地です。 ≪デメリット≫ 坂道のあるアクセスです。
☆築浅ビル(2021年竣工)、前面ガラス張りで視認性良好です。 |
109083
|
神田 2分 |
千代田区鍛冶町1丁目 |
¥479,094 |
84.71m2 25.62坪 |
5階/9階建 2007/03 |
|
    
|
【神田エリア:貸事務所】 ≪メリット≫ 神田駅至近の好立地 ≪デメリット≫ 1階.2階が飲食店なので臭いが気になる方もいるかも。
☆シンプルな間取!2面採光の明るい室内です! |
112320
|
神田 1分 |
千代田区神田鍛冶町3丁目 |
¥481,635 - |
96.5m2 29.19坪 |
3階/6階建 1970/12 |
|
    
|
【神田エリア:貸店舗・事務所】 ≪メリット≫ 神田駅徒歩1分の3F物件! ≪デメリット≫ 2028年10月末までの定期借家契約です。
☆各業種ご相談下さい! |
113084
|
内幸町 2分 |
港区西新橋1丁目 |
¥482,482 ¥74,228 |
111.54m2 33.74坪 |
2階/7階建 1974/01 |
|
    
|
【新橋エリア:貸事務所】 ≪メリット≫ 烏森通り沿い!東南角地! ≪デメリット≫ 事務所入り口が少し味気ないかもしれません。
☆1Fにはクリニック!ビジネスには最適な立地です。複数路線使用可! |
109332
|
銀座一丁目 1分 |
中央区銀座1丁目 |
¥484,000 ¥58,080 |
58.2m2 17.6坪 |
6階/9階建 1985/03 |
|
    
|
【銀座エリア:貸店舗・事務所】 ≪メリット≫ 白基調の清潔感あふれる外装!エントランス横にも看板掲示箇所有り。! ≪デメリット≫ 入口付近が細長くレイアウトに工夫が必要です。
☆銀座1丁目駅徒歩1分、中央通り沿いで視認性抜群の立地です!! |
112839
|
外苑前 5分 |
港区南青山4丁目 |
¥484,000 - |
97.62m2 29.53坪 |
B1階/8階建 1969/05 |
|
    
|
【青山エリア:貸事務所】 ≪メリット≫ 外苑西通り沿い、複数路線利用可能でアクセス至便!! ≪デメリット≫ 外観・共用部は築年数経過否めず
☆多業種相談可能な半地下物件! |
113544
|
渋谷 6分 |
渋谷区神宮前6丁目 |
¥484,000 - |
66.12m2 20坪 |
4階/10階建 1970/08 |
|
     
|
| 【渋谷エリア:貸事務所】≪メリット≫キャットストリート沿いのヴィンテージビル!!≪デメリット≫店舗はNG ☆利便性の良い立地、使いやすい間取りです |
90058
|
渋谷 6分 |
渋谷区宇田川町 |
¥484,352 ¥90,816 |
90.98m2 27.52坪 |
6階/9階建 1989/07 |
|
    
|
【渋谷エリア:貸事務所】 ≪メリット≫ 東急ハンズ渋谷店隣りの好立地! ≪デメリット≫ 長方形の室内なのでレイアウトに工夫が必要かも・・。
☆ガラス張りのおしゃれな外観!人気のワンフロアー独立物件です! |
97795
|
大門 1分 |
港区浜松町2丁目 |
¥486,200 ¥71,500 |
85.96m2 26坪 |
4階/10階建 1989/12 |
|
    
|
【浜松町エリア:貸店舗・事務所】 ≪メリット≫ 前面ガラス張りの外観!!高級感のあるエントランスでイメージアップ!! ≪デメリット≫ 看板掲示は出せません。(集合表札はエントランス外にあり)
☆大門交差点至近の第一京浜沿い、正方形に近い使いやすい間取りのワンフロア独立タイプ |
112977
|
浜松町 4分 |
港区浜松町2丁目 |
¥486,475 |
58.49m2 17.69坪 |
10階/10階建 2019/01 |
|
    
|
【浜松町エリア:事務所】 ≪メリット≫ 第一京浜、金杉橋北交差点の角地。視認性良好です。 ≪デメリット≫ 室内のレイアウトにひと工夫を。
☆2019年竣工のスモールオフィス。
|
112315
|
半蔵門 1分 |
千代田区一番町 |
¥488,730 |
97.92m2 29.62坪 |
7階/7階建 1985/02 |
|
    
|
【半蔵門エリア:貸事務所】 ≪メリット≫ 半蔵門駅至近!抜群の好立地です! ≪デメリット≫ EVは一基のみ
☆周辺閑静な環境で落ち着いたビジネス街! |